Résidence Garthby

Résidence Garthby

Type : Résidentiel – Construction neuve
Localisation : Beaulac-Garthby, Qc
Rôle : Pigiste, co-création, plans 2D & 3D

Collaboration : JPR Design – Jessy Roy-Laroche

Description du projet :

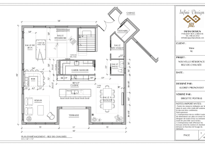
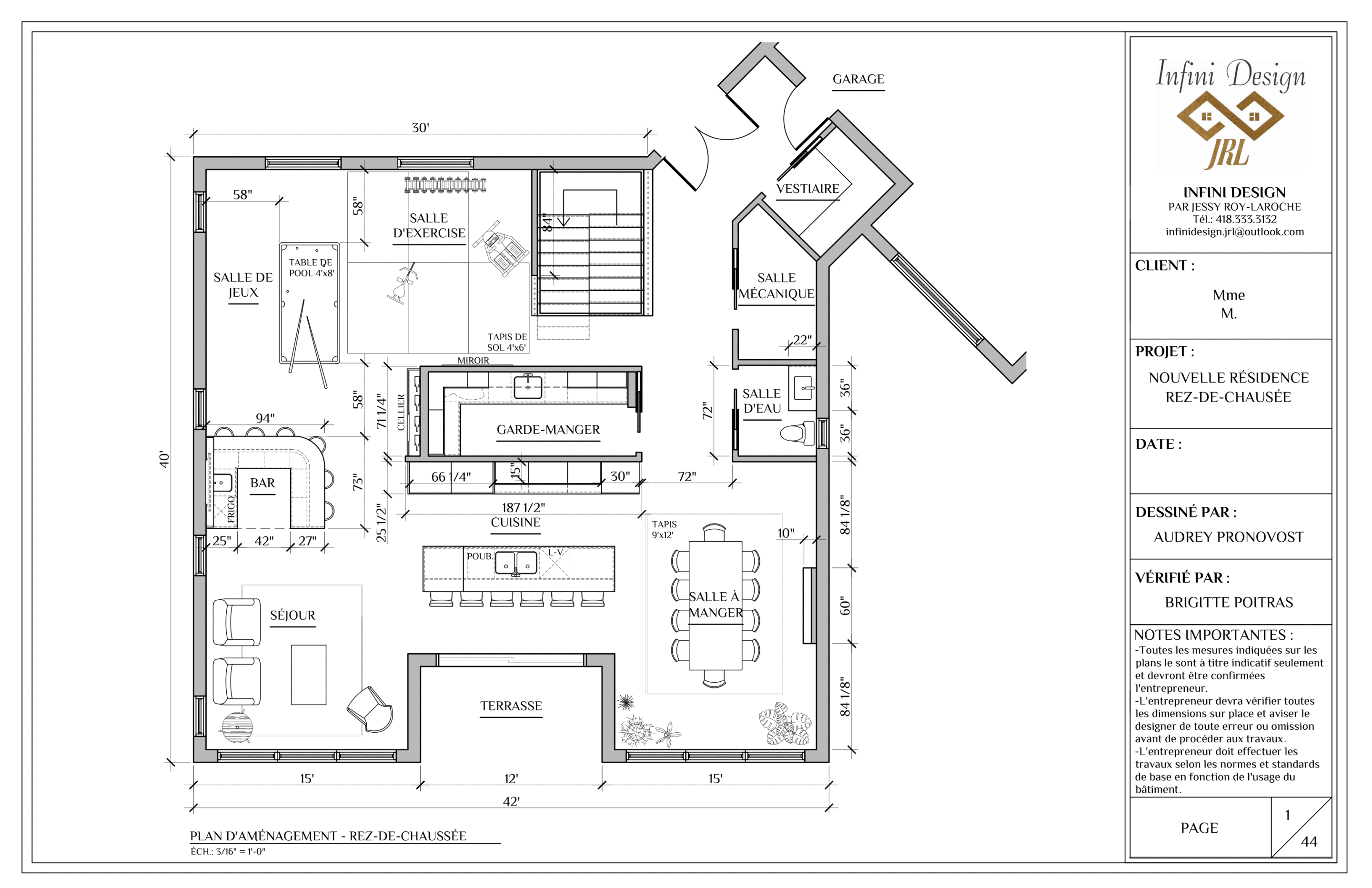
Pour cette famille dynamique, nous avons conçu une maison ouverte, conviviale et spectaculaire, pensée pour accueillir famille et amis lors de soirées sportives ou de repas animés. Les matériaux durables et faciles d’entretien sont rehaussés de touches audacieuses et éclatantes, reflétant la personnalité des clients et leur goût pour un intérieur vivant et inspirant.

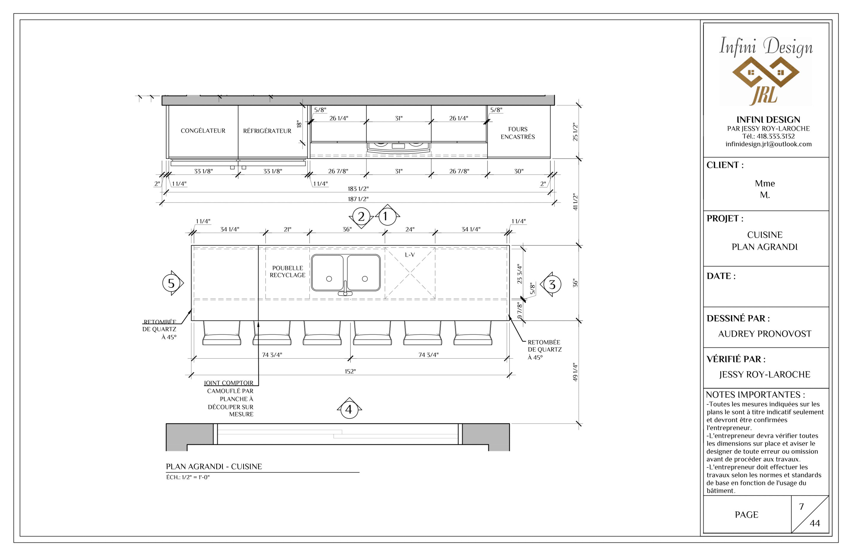
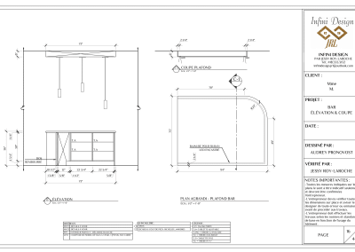
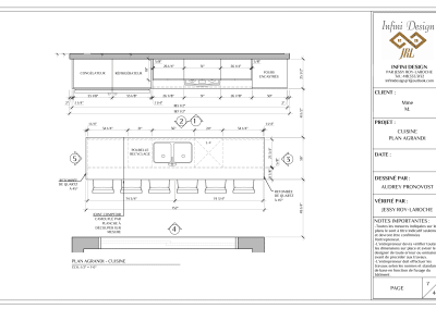
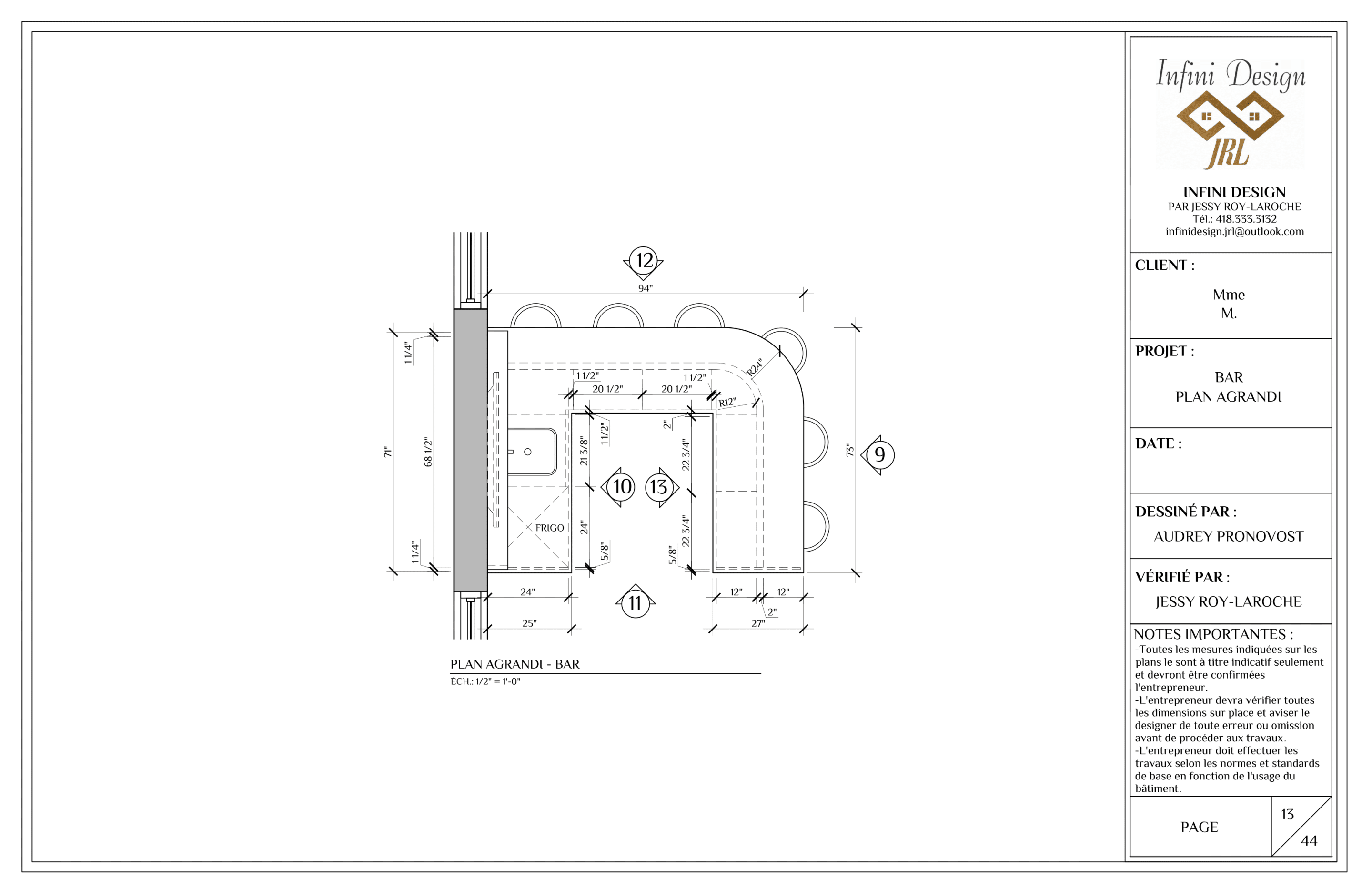
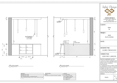
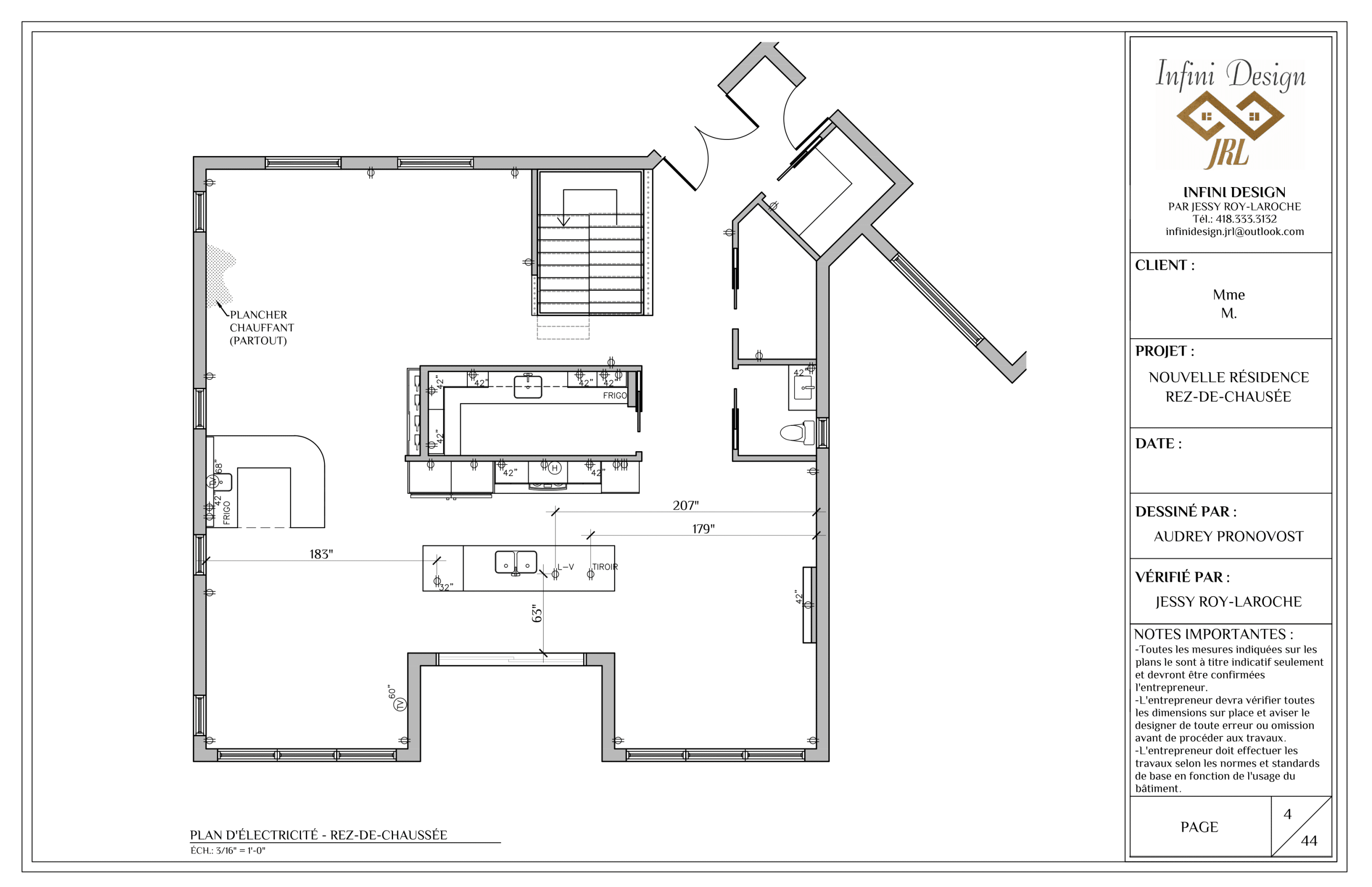
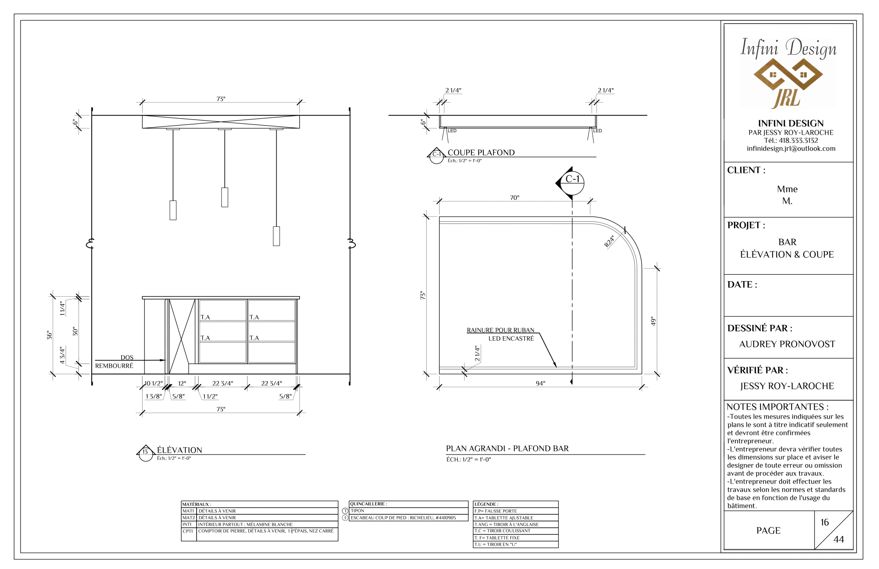
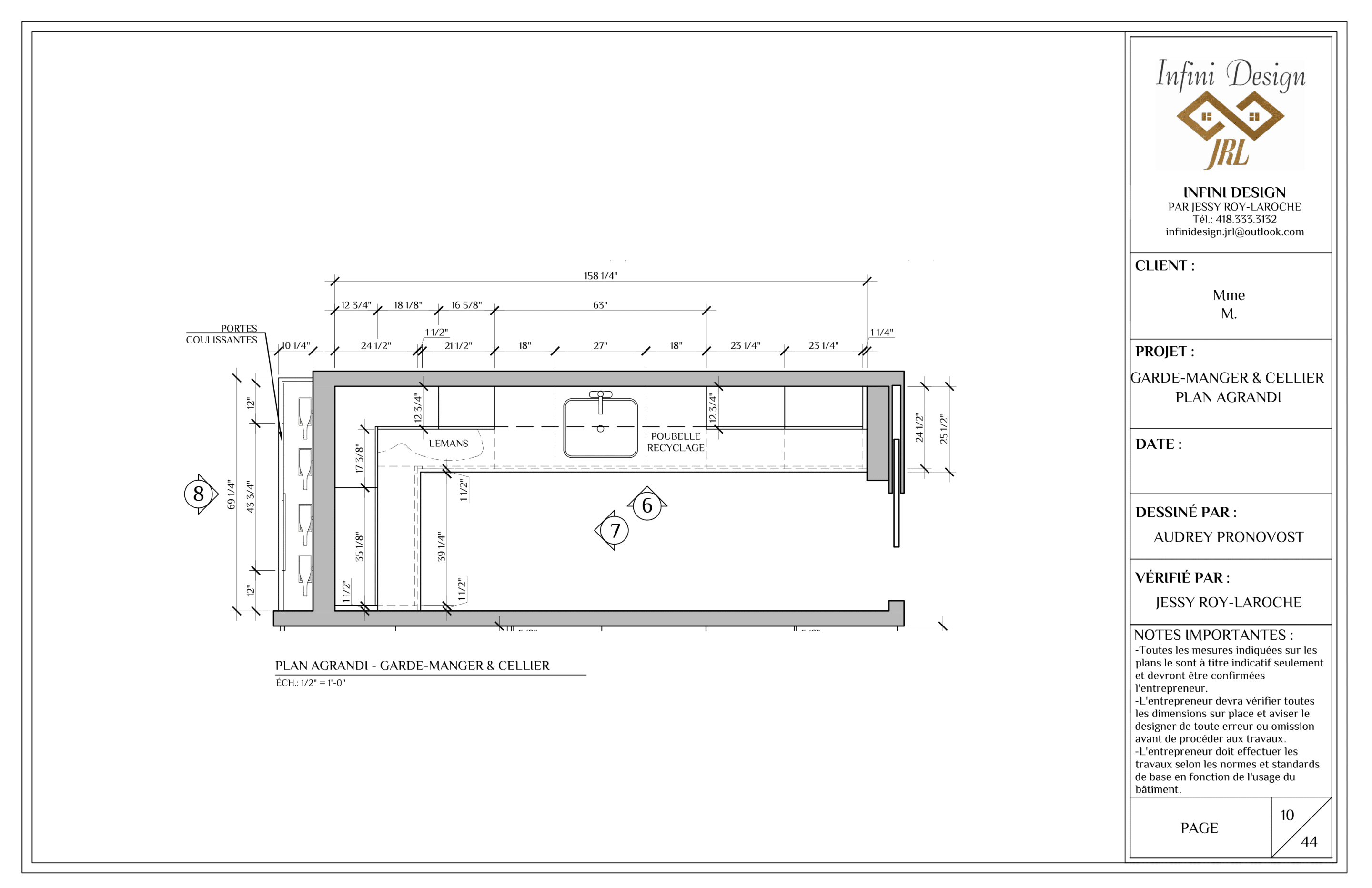
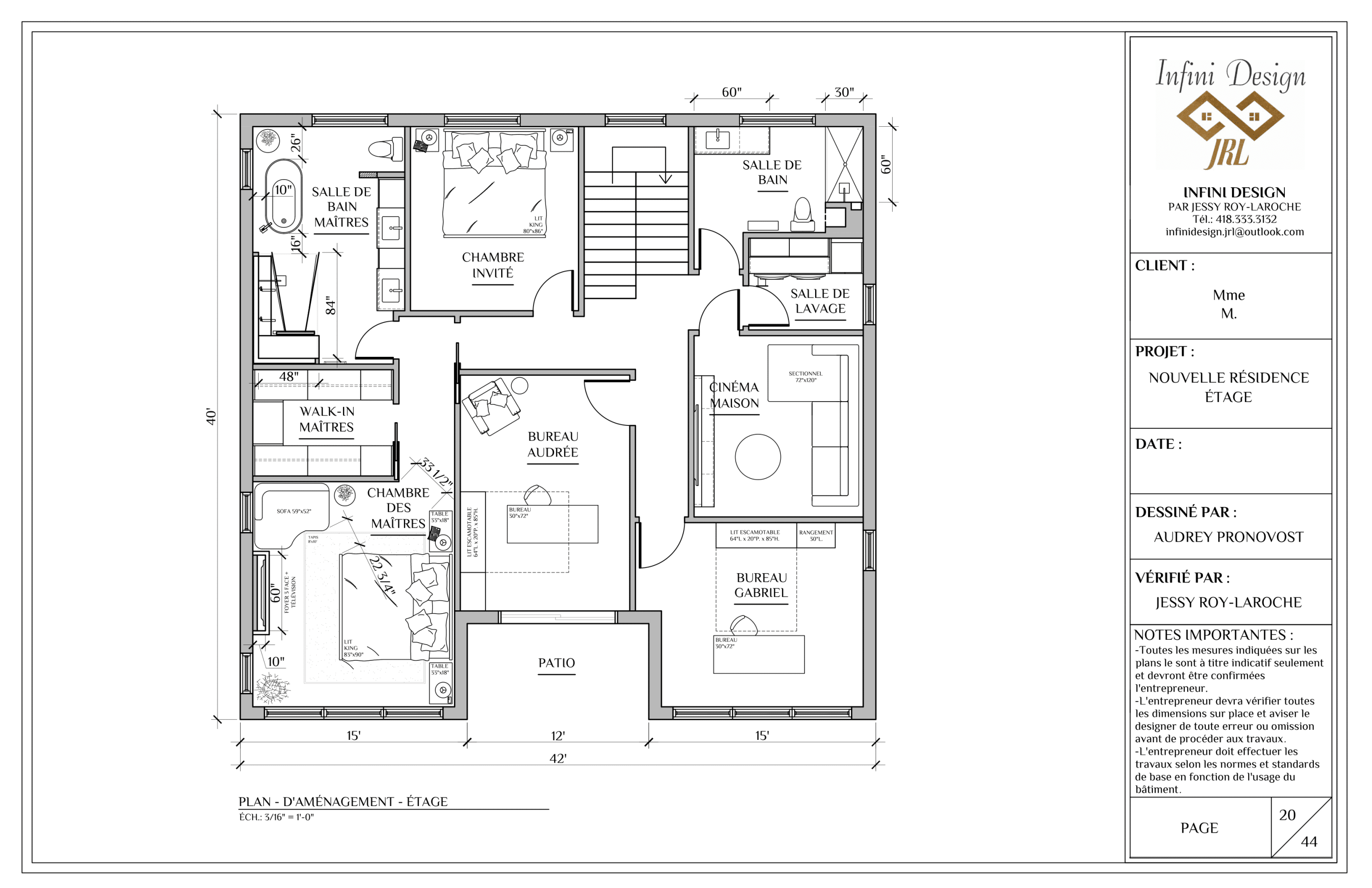
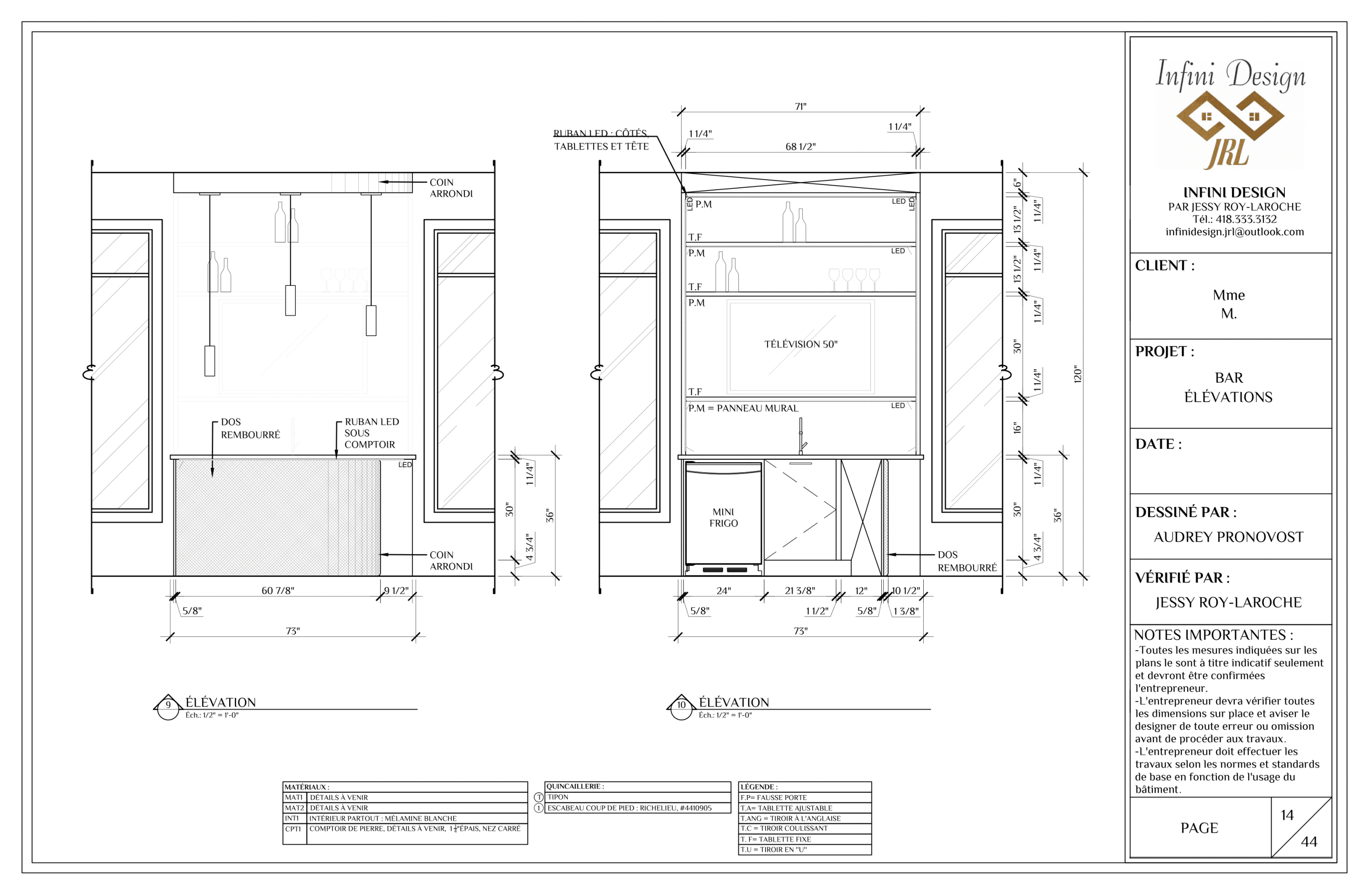
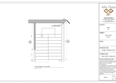
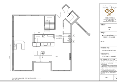
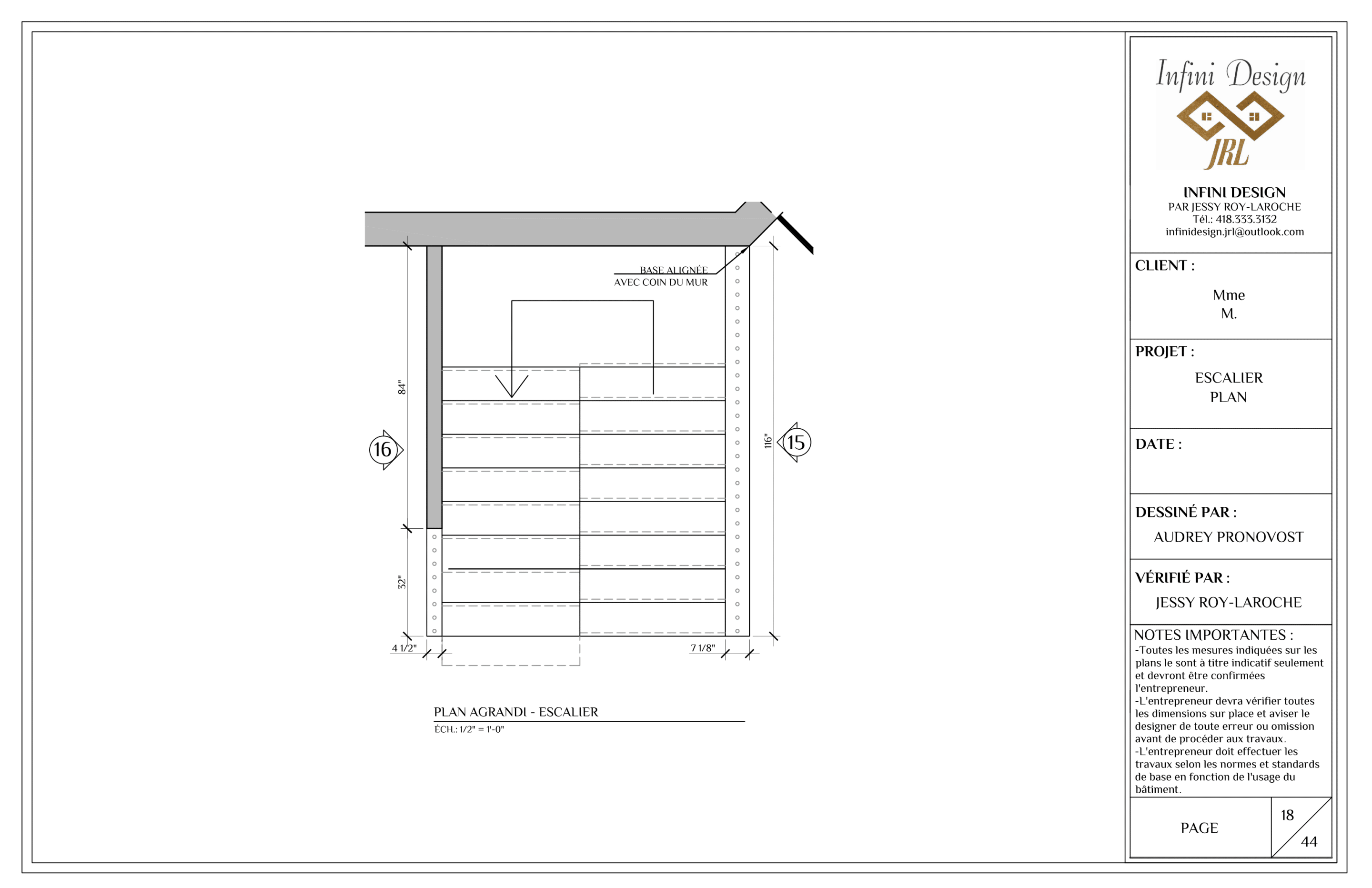
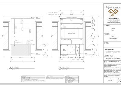
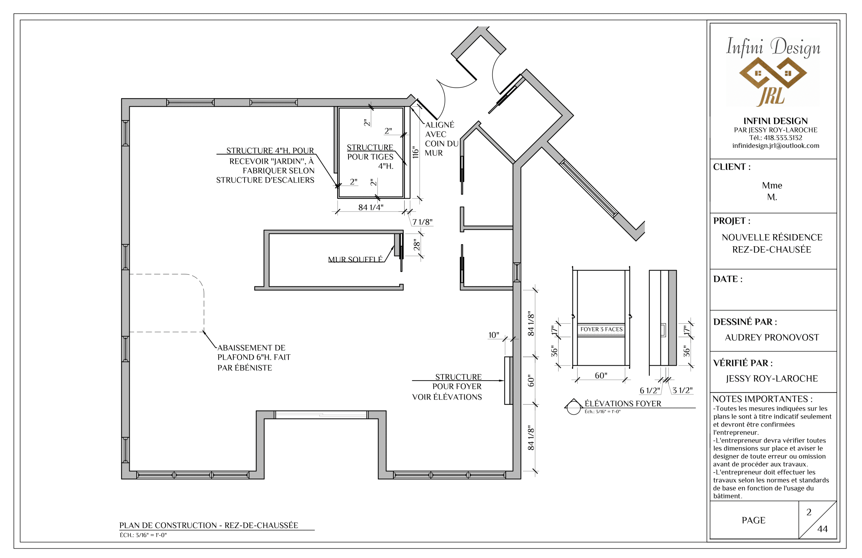
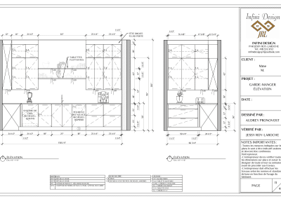
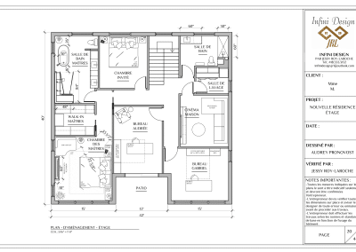
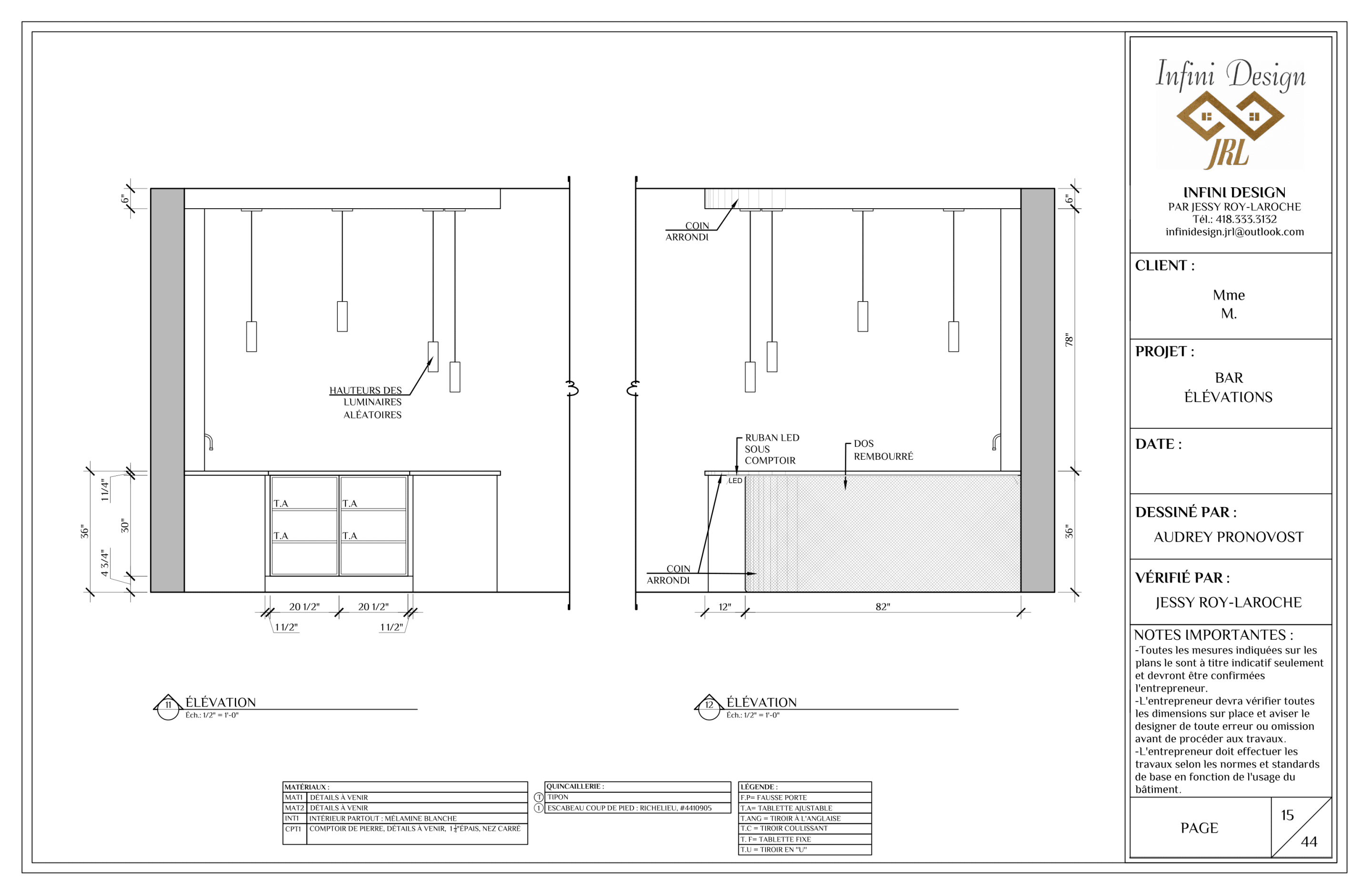
L’espace de vie central combine fonctionnalité et convivialité : une table de salle à manger 10 places, un bar convivial avec table de billard adjacente, ainsi qu’un cellier sur mesure pour un rangement optimisé. La cage d’escalier apporte un véritable effet “wow”, avec des références aux jardins japonais que les clients ont visités, créant un lien poétique entre les étages.

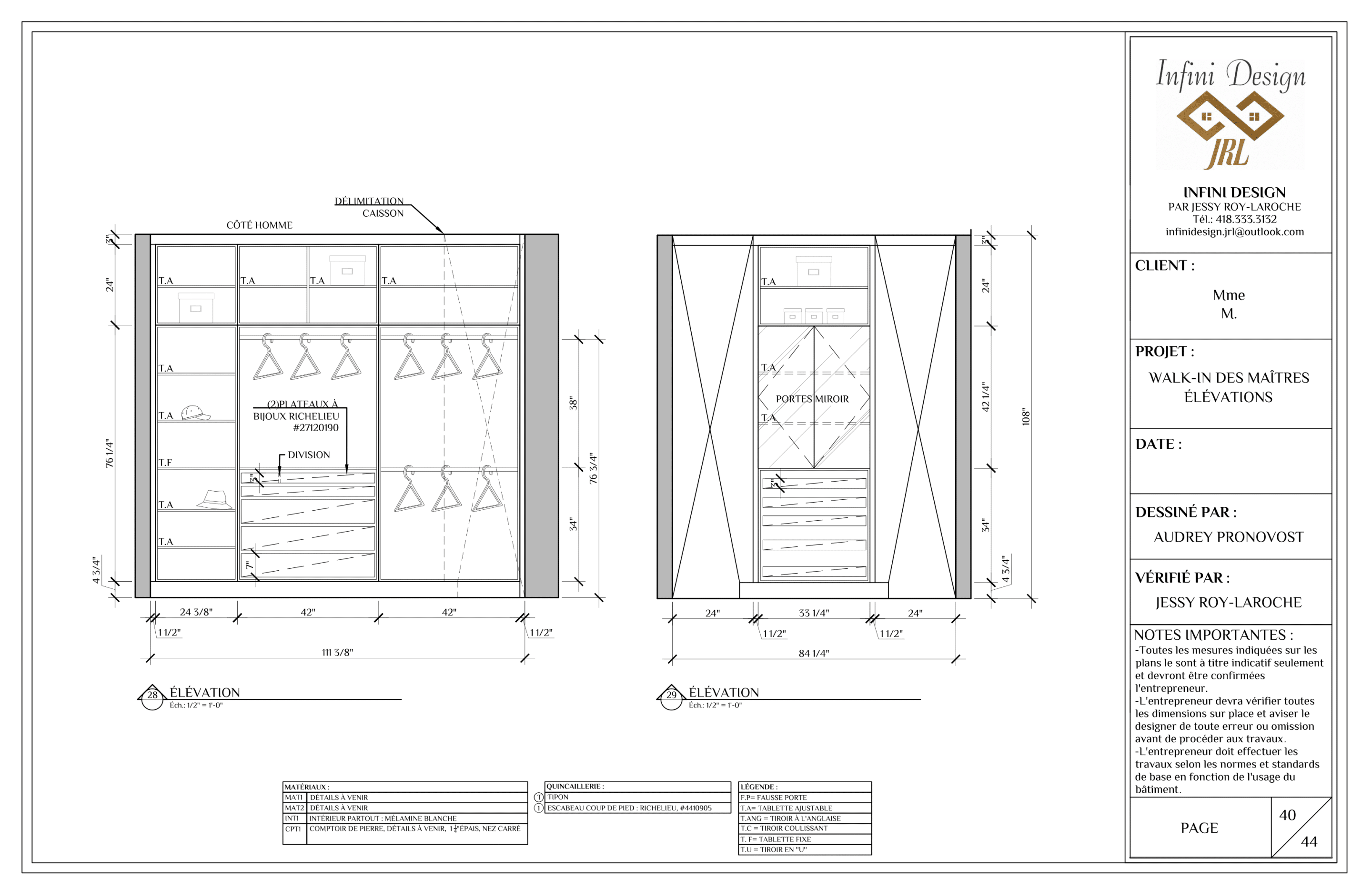
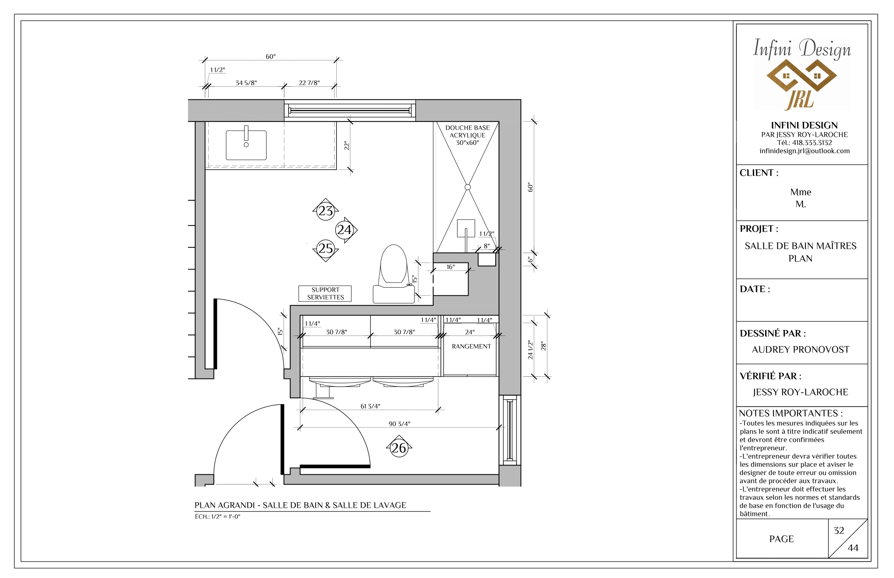
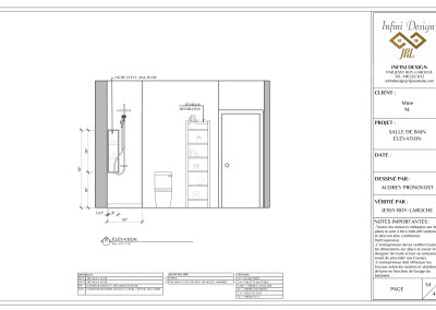
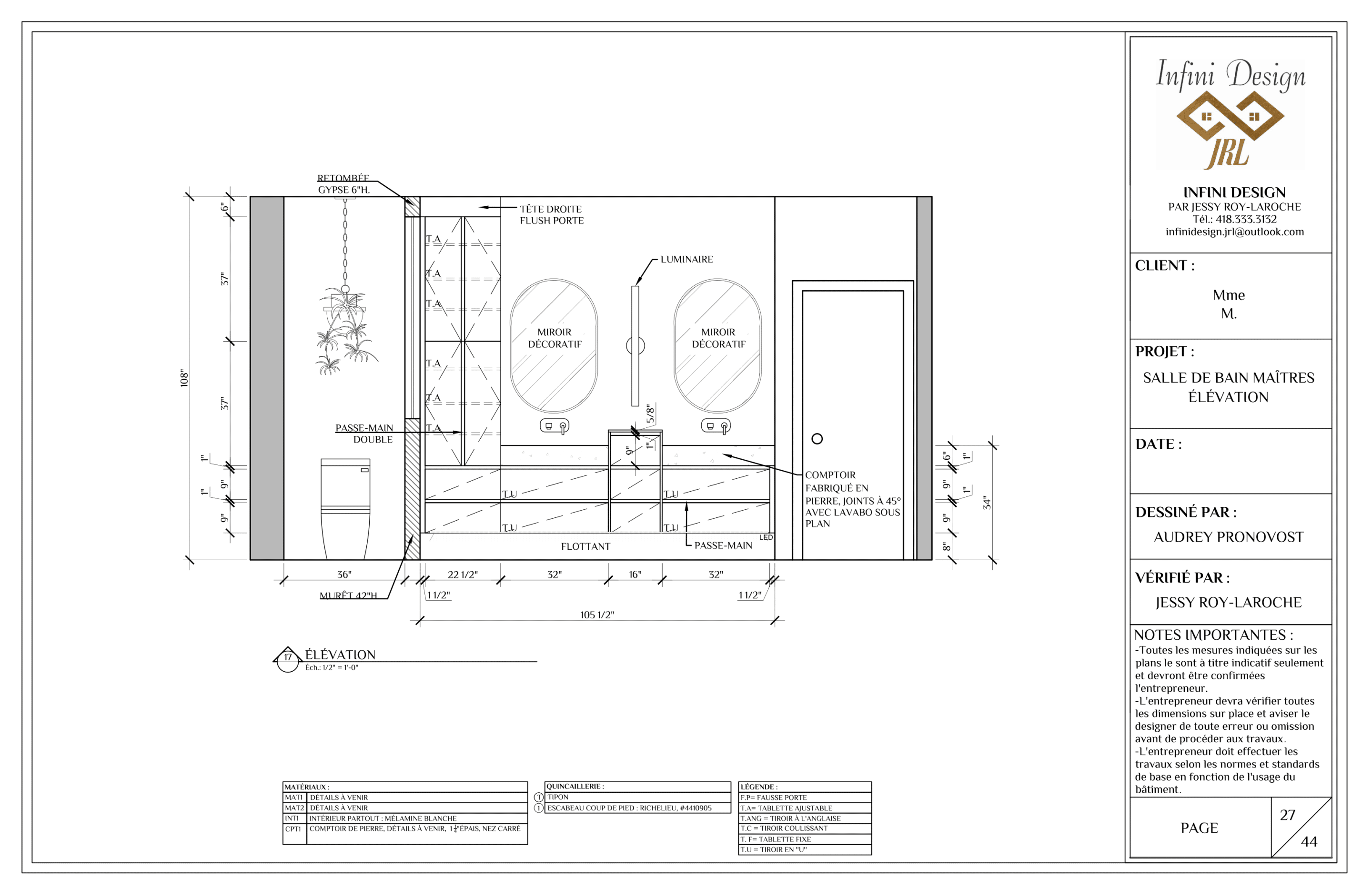
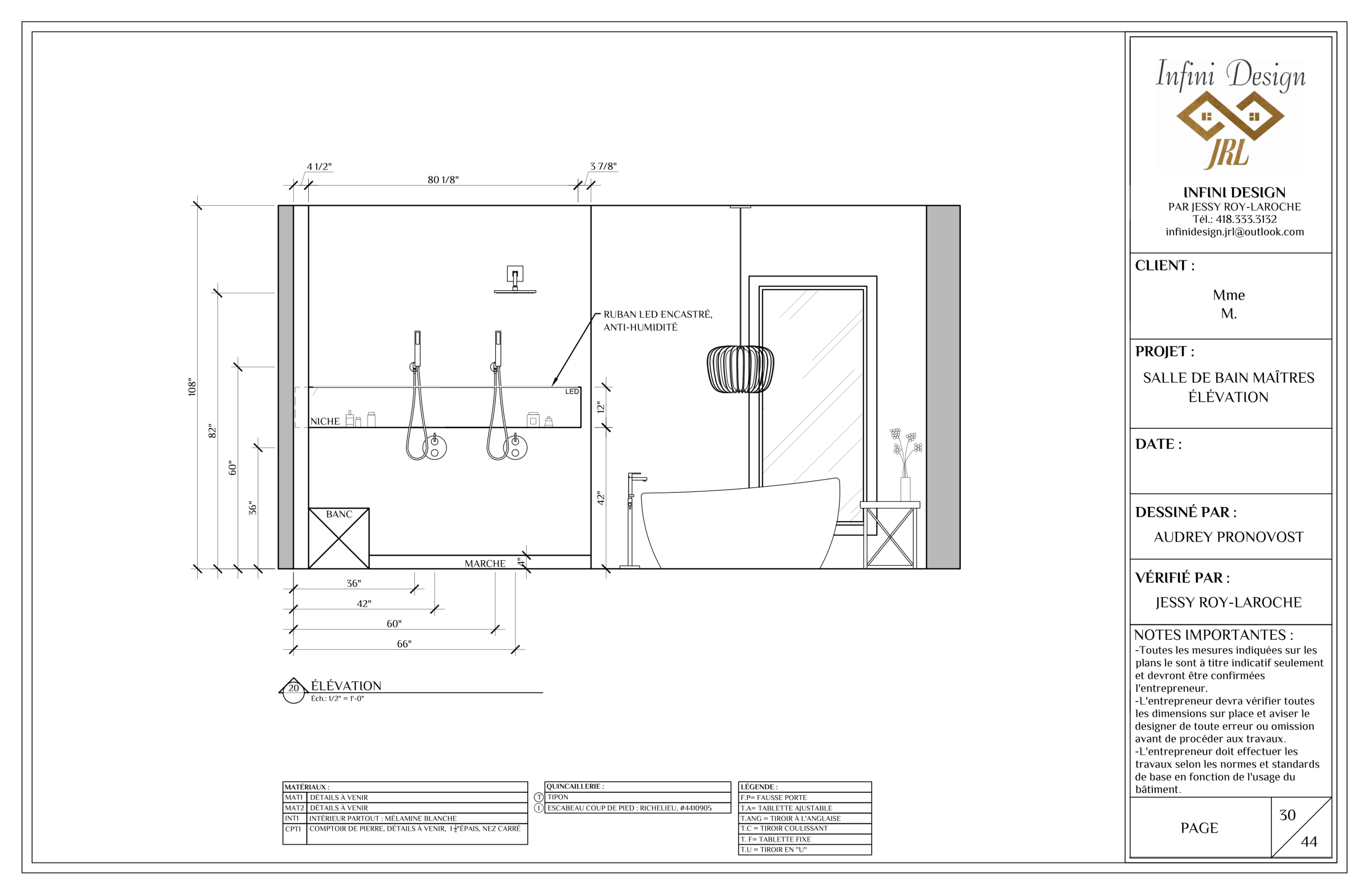
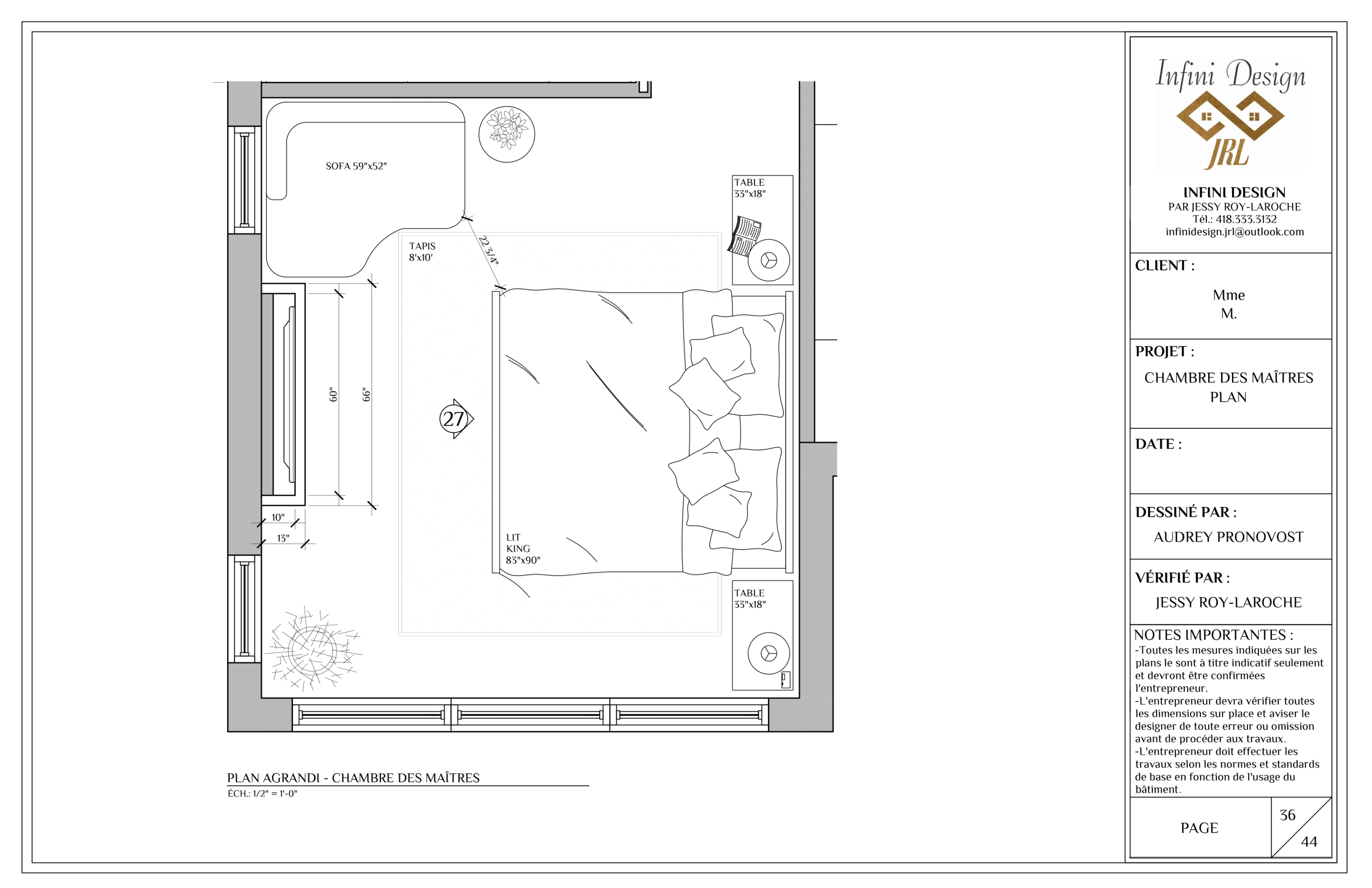
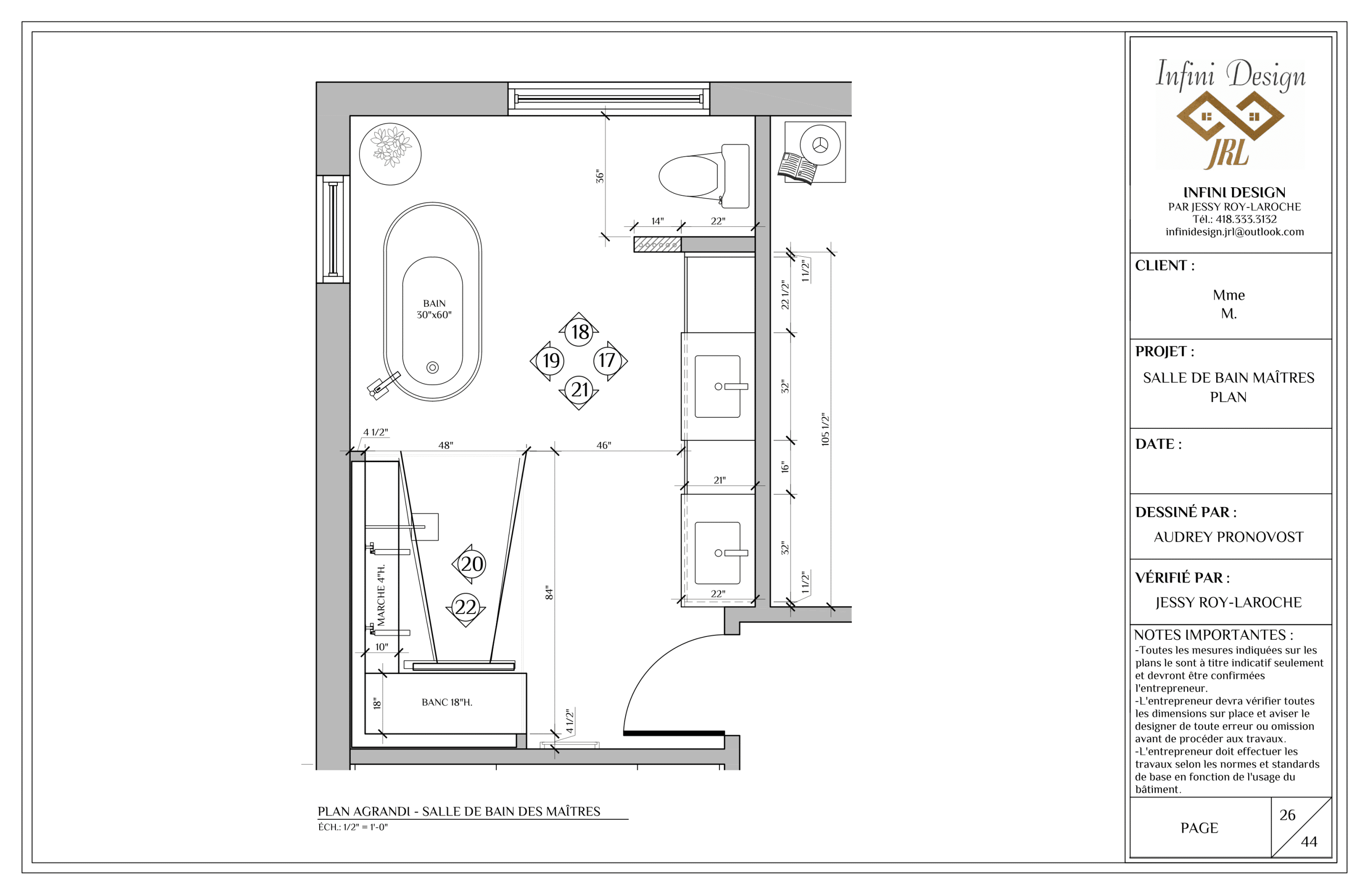
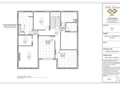
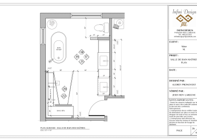
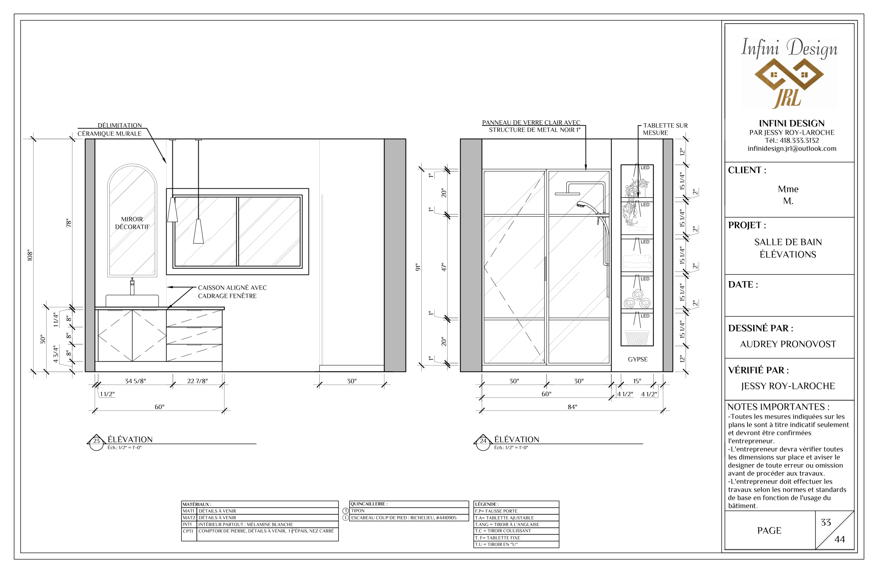
Dans les espaces privés, le confort et le luxe sont au rendez-vous : la suite des maîtres comprend une douche double à l’italienne, et le cinéma maison, insonorisé et chaleureux, offre un espace idéal pour la détente.

Chaque choix de design a été réfléchi pour allier esthétique audacieuse, confort et convivialité, créant une maison à la fois élégante, fonctionnelle et spectaculaire, avec une vue imprenable sur le lac.

Images d'inspiration

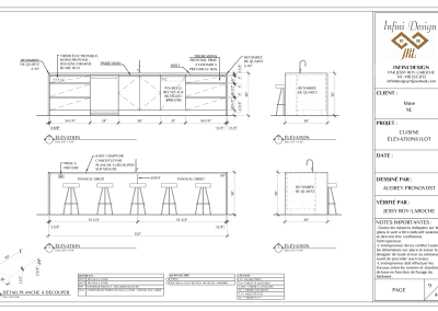
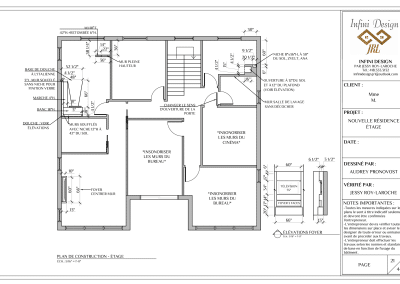
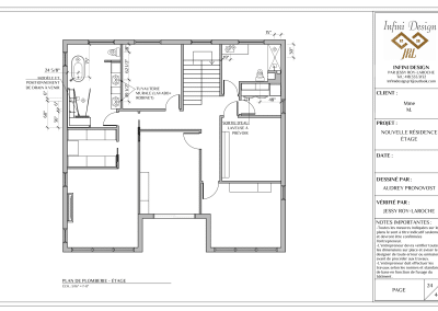
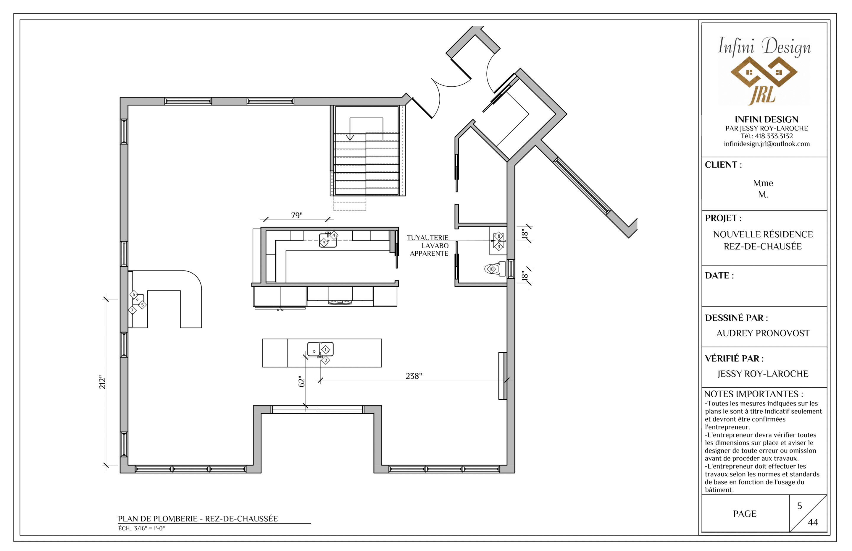
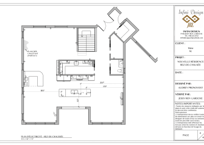
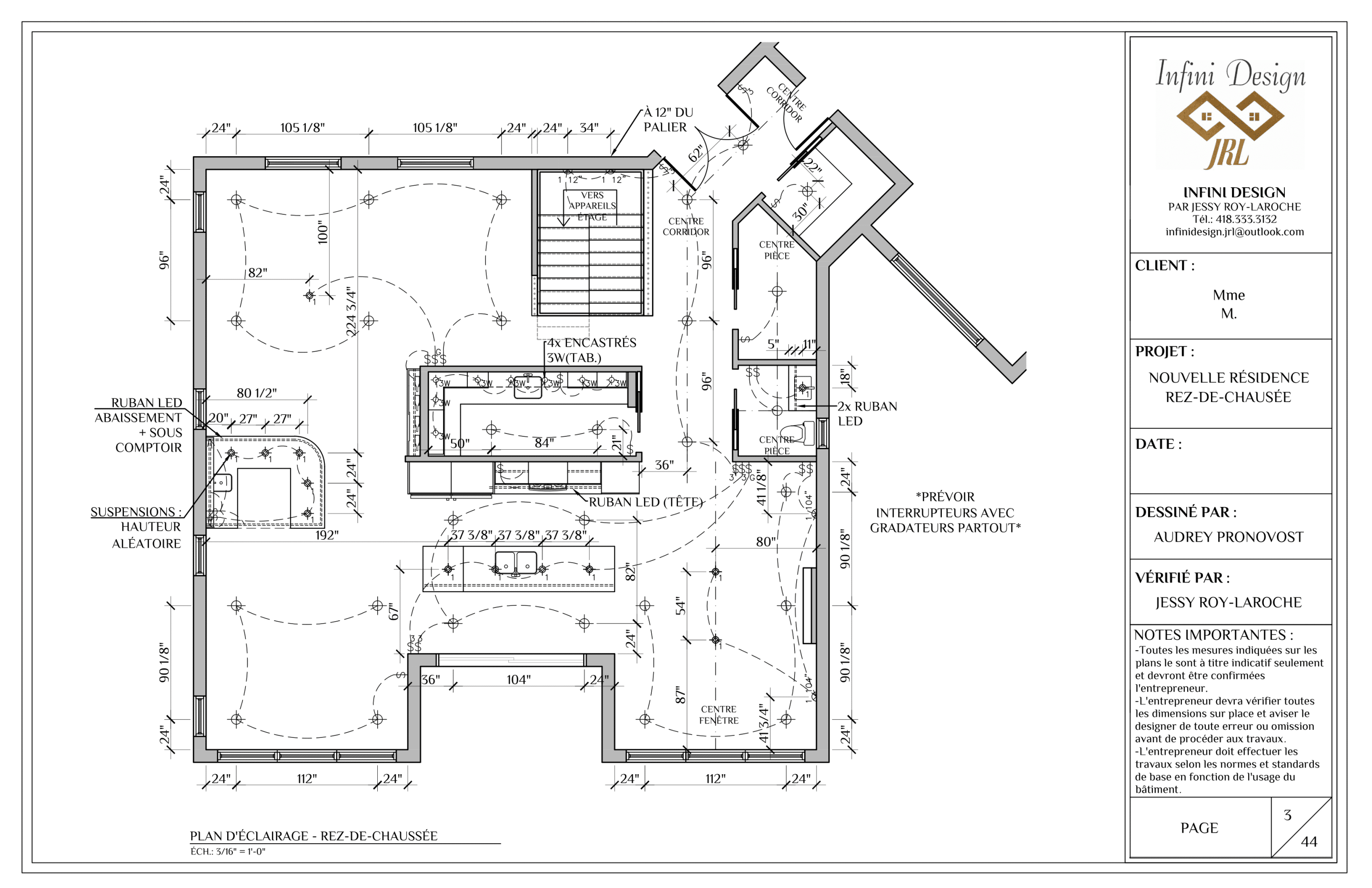
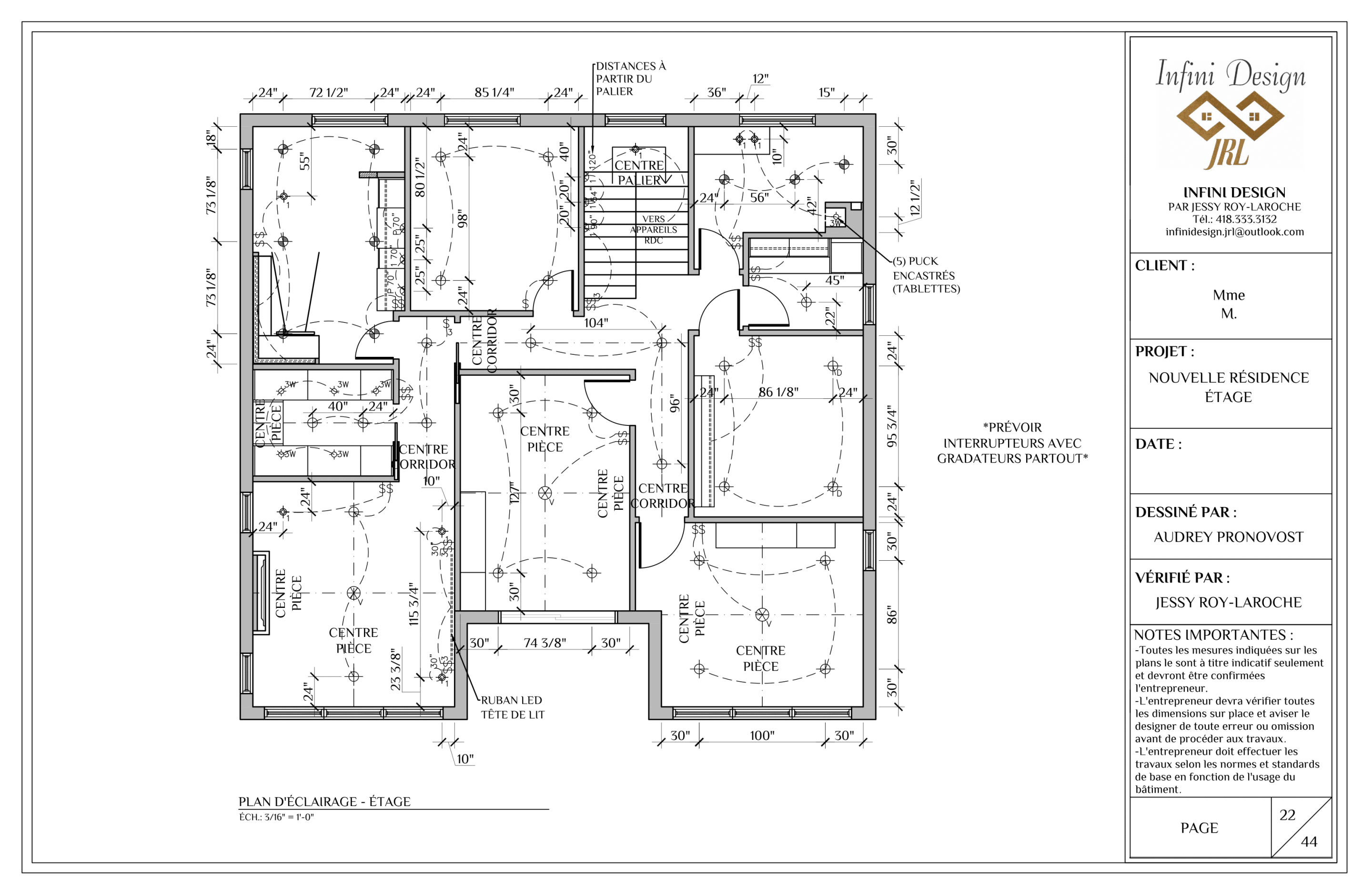
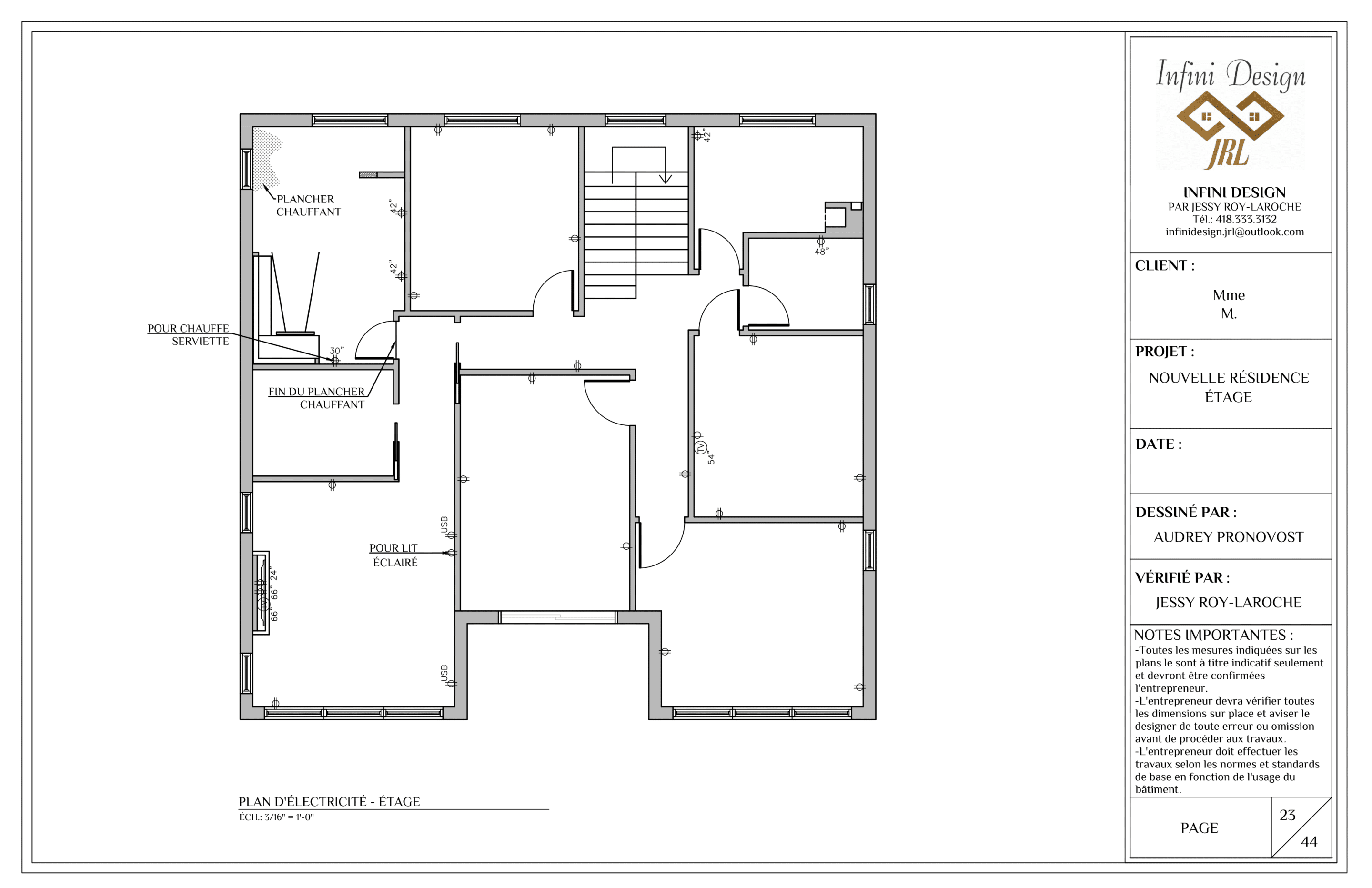
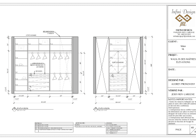
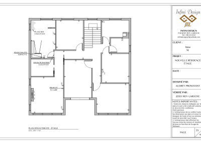
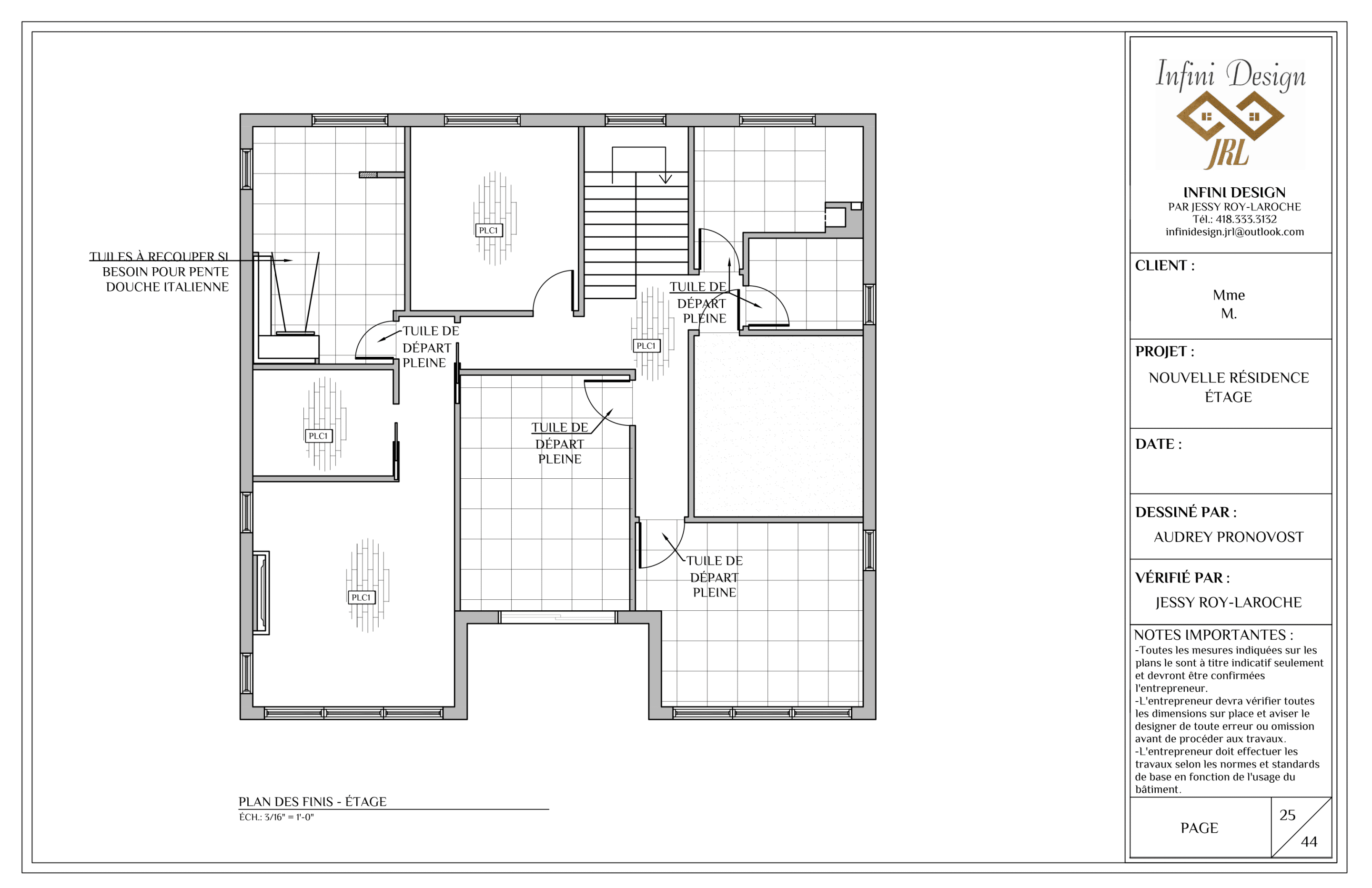
Plans 2D

Plans 3D