Mini chalet des loups

Mini chalet des loups

Type : Commercial – Construction neuve – Hébergement touristique
Localisation : Saint-Jacques-le-Majeur-de-Wolfestown, Qc
Rôle : Pigiste, co-création, plans 2D & 3D

Collaboration : JPR Design – Jessy Roy-Laroche

Description du projet :

Ce projet de mini maison s’inscrit dans une démarche architecturale axée sur la sobriété formelle, la performance ergonomique et l’intégration au site naturel du Domaine Wolfestown. L’objectif était de concevoir un hébergement compact offrant une expérience immersive, tout en respectant les contraintes du territoire et la vocation écologique du lieu.

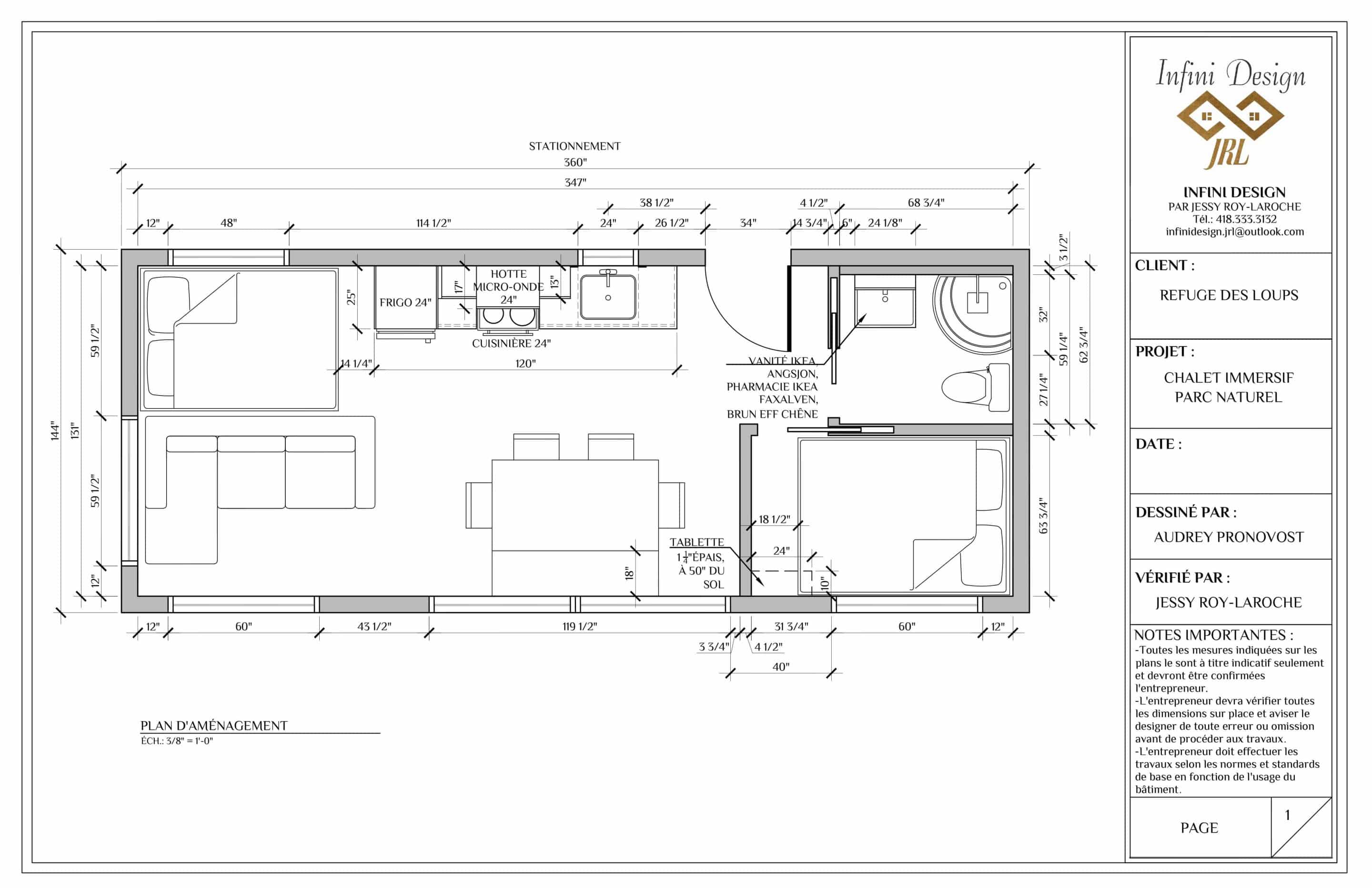
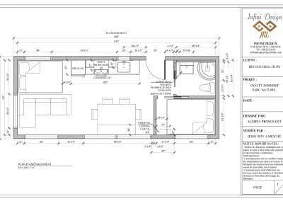
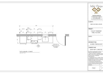
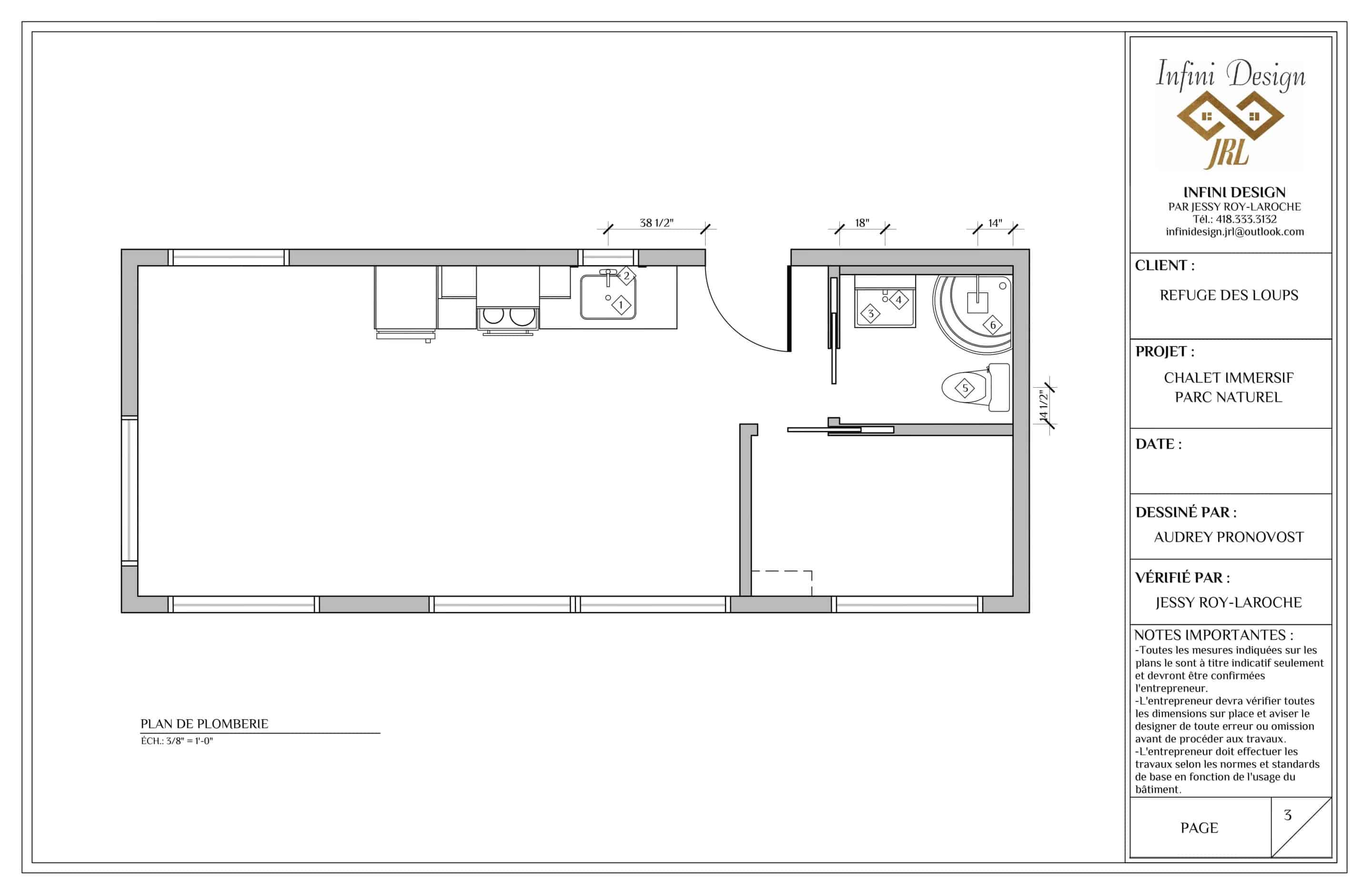
La conception repose sur une optimisation maximale de la superficie, où chaque volume est pensé selon sa fonction et son usage. Le plan favorise une circulation fluide, une lecture claire des espaces et une connexion visuelle constante avec l’extérieur. Les ouvertures généreuses, stratégiquement orientées, permettent un apport lumineux optimal et offrent une vue directe sur l’enclos des loups, élément structurant du projet.

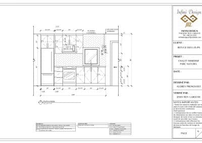
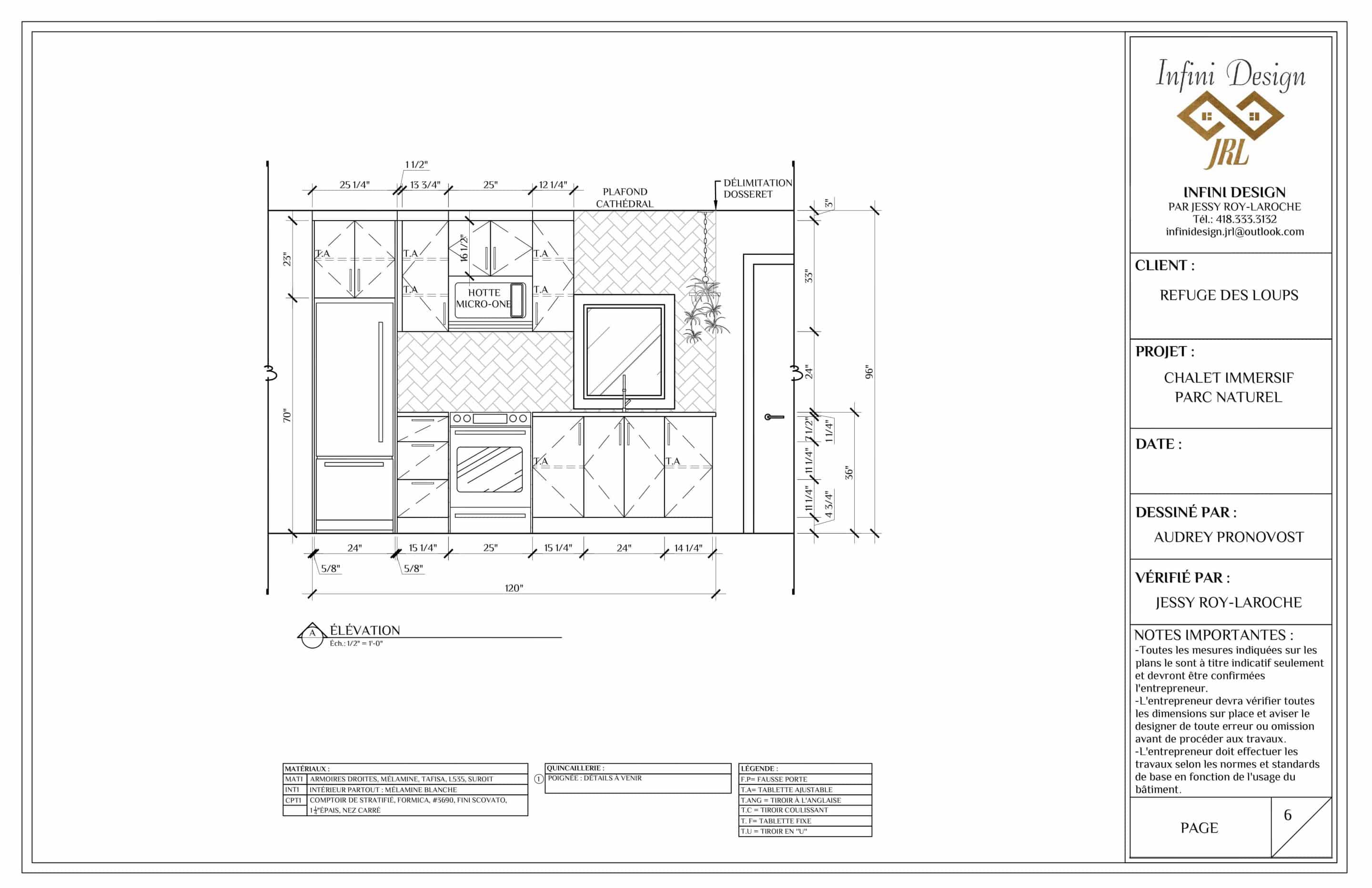
L’architecture intérieure mise sur une palette de matériaux naturels et durables, tels que le bois aux teintes chaudes et les textures minérales, afin de créer un dialogue harmonieux entre l’intérieur et la forêt environnante. Les finis sobres et le mobilier intégré renforcent la simplicité volumétrique et mettent en valeur les qualités intrinsèques de l’espace.

Enfin, ce projet s’inscrit dans une approche de tourisme responsable et conscient, où l’architecture devient un outil au service du vivant. Le mini chalet ne se limite pas à sa fonction d’hébergement, mais propose une expérience architecturale immersive, respectueuse de son contexte et porteuse de sens.

Référence web : https://www.domainewolfestown.ca/hebergement/le-ptit-loup/

Images d'inspiration

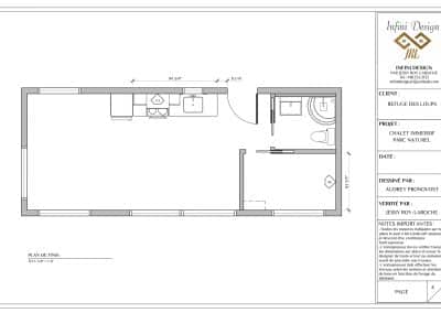
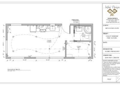
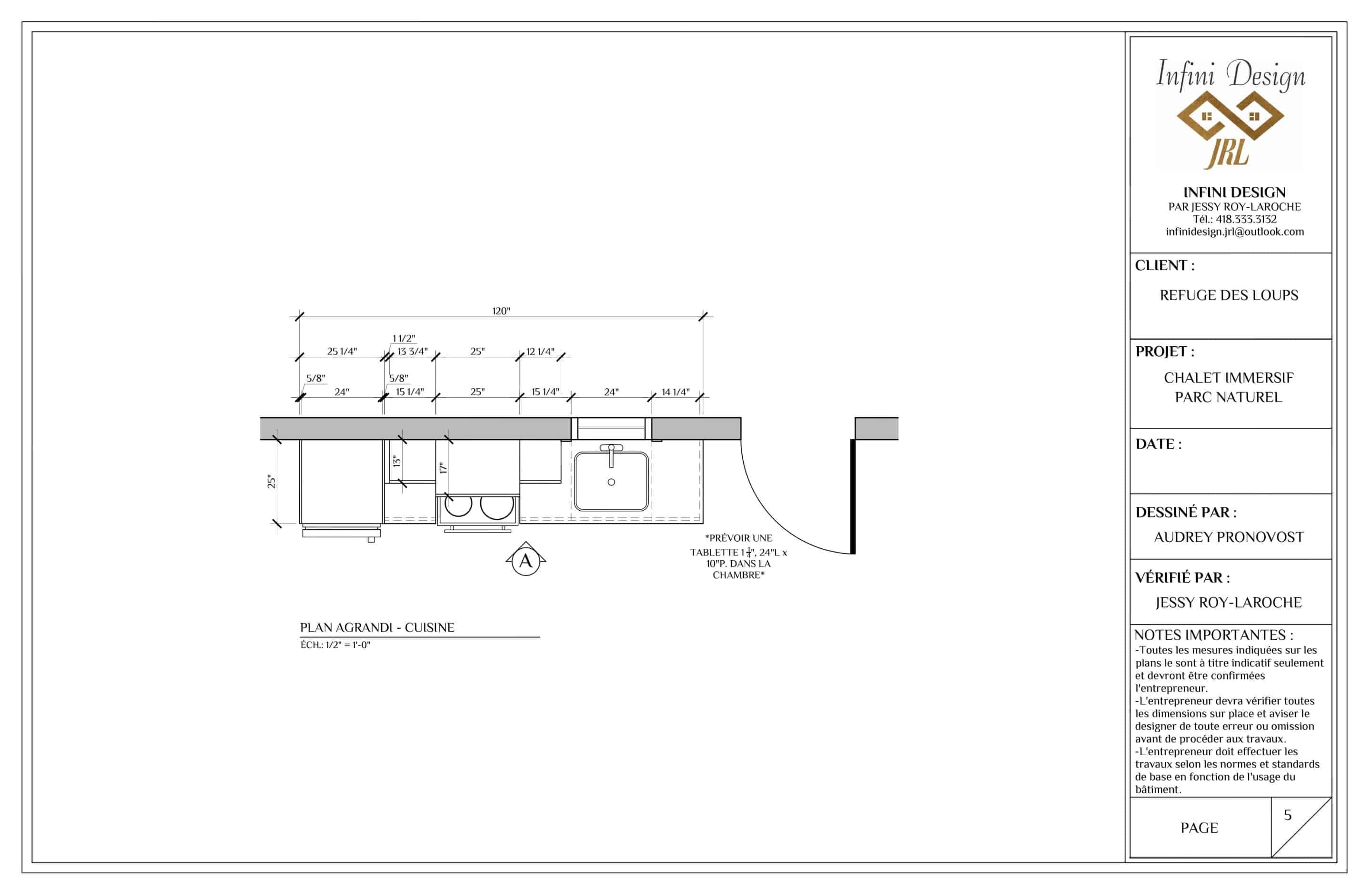
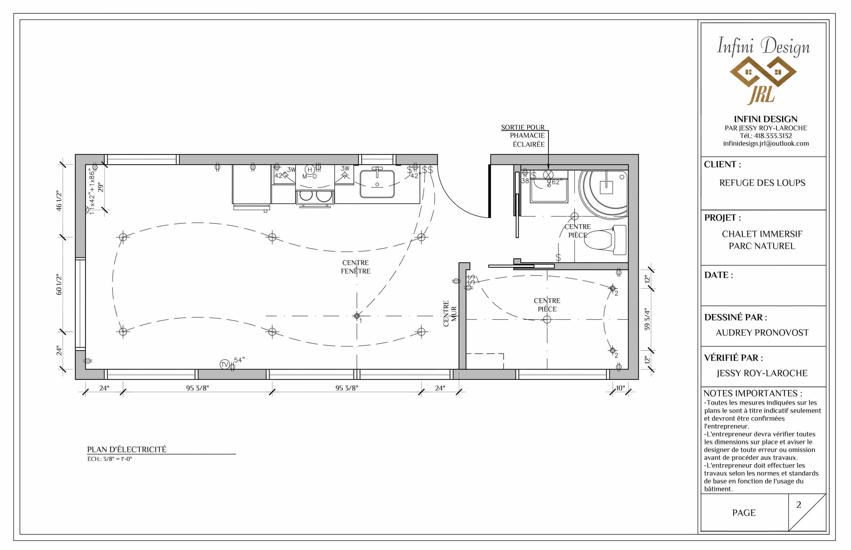
Plans 2D

Plans 3D